Berlin-Wilhelmsruh
Hertz7 · Mehrfamilienhaus im Stadtteil Wilhelmsruh / Pankow
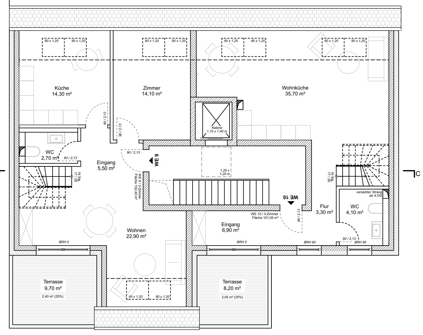
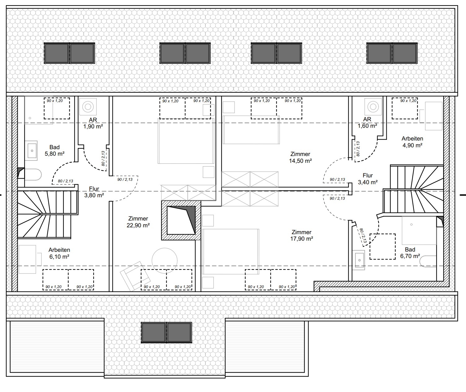
Das Projekt Hertz7 entwickelt ein modernes Mehrfamilienhaus mit klarer Architektursprache und effizient organisierten Grundrissen.
Daten & Fakten
Typ
Mehrfamilienhaus
Mehrfamilienhaus
Flächen
MFH mit 10 Wohnungen (50 bis 110 m²) und 1 Gewerbeeinheit ca. 40 m²
MFH mit 10 Wohnungen (50 bis 110 m²) und 1 Gewerbeeinheit ca. 40 m²
Standard
KfW-40, Wärmepumpe, PV, Fußbodenheizung
KfW-40, Wärmepumpe, PV, Fußbodenheizung
Architektur
Moderne Linien · helle Fassaden
Moderne Linien · helle Fassaden
Nutzung
Familiengerechte Wohnungen mit Außenflächen
Familiengerechte Wohnungen mit Außenflächen
Status
Ausführungsplanung · Fertigstellung geplant 2026
Ausführungsplanung · Fertigstellung geplant 2026
Beschreibung
Das Projekt Hertz7 entwickelt ein modernes Mehrfamilienhaus mit klarer Architektursprache und effizient organisierten Grundrissen. Die Wohnungen sind auf urbane, familienfreundliche Nutzung ausgelegt; Balkone und Außenbereiche steigern die Wohnqualität. Energetisch wird ein hoher Standard mit Wärmepumpe, Photovoltaik und Fußbodenheizung umgesetzt.
Unser Leistungsanteil
- Projektentwicklung & Optimierung der Wohnflächen
- Genehmigungs- & Ausführungsplanung (LPH 1–8)
- GU/GÜ – schlüsselfertige Realisierung
Lage
In Berlin-Pankow, fußläufig zur S-Bahn Wilhelmsruh; familienfreundliche Infrastruktur, kurze Wege.








